Das Achenquartier ist ein modernes, nachhaltiges und modular gebautes Ausweichquartier der Sparkasse Kitzbühel. Es entsteht bzw. entstand direkt am Achenweg neben Bahnhof und Busterminal Kitzbühel und wurde zwischen 2023 und 2025 umgesetzt. Das Achenquartier ist jedoch nicht nur Übergangslösung, sondern soll mindestens 50 Jahre langfristig genutzt werden.

NORD                                             FASSADENSCHNITT                                              SÜD

BARRIERERFREIER HAUPTEINGANG

ERDGESCHOSS

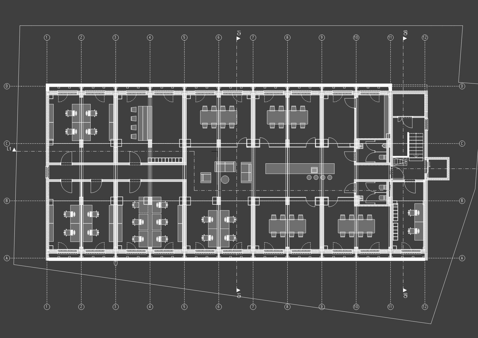
1. OBERGESCHOSS

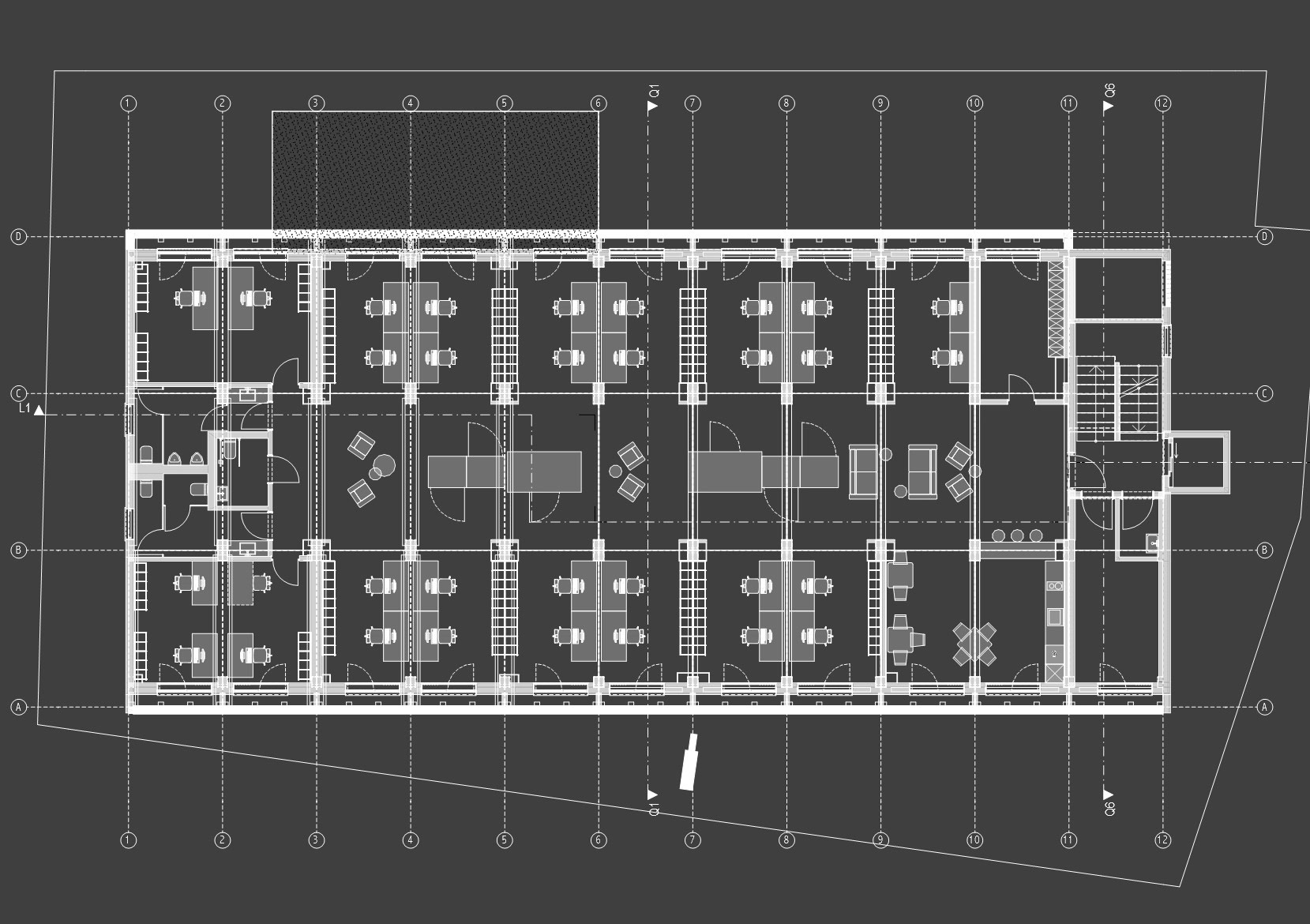
2. OBERGESCHOSS

1. OG OBEN VORHER/UNTEN NACHHER                                                           2. OG OBEN VORHER/UNTEN NACHHER 

LÄNGSSCHNITT L1

QUERSCHNITT Q1                                                                                                                           QUERSCHNITT Q6

NORDANSICHT

SÜDANSICHT

Back to Top